韩国服务器

韩国夫妻晒出四口之家,参观全屋后,我家的房子瞬间不香了!

  大家好,今天我们参观的是一个准妈妈的公寓,这位女士如今一家共五口人,丈夫,六岁的女儿和一个充满好奇心的两岁儿子,还有肚子里没有出生的小宝宝。

  <a href=韩国夫妻晒出四口之家,参观全屋后,我家的房子瞬间不香了!”/>

  这位女士是一名空乘人员

  由于其工作性质,她不会花很多时间在家。

  对与她来说,家只是一个睡觉的地方。

  然而,由于育儿假期,屋主在家时间较长。

  女士现在认为住的空间对她的生活产生了巨大的影响。

  又在为分娩做准备,屋主希望能有一个舒适的窝。

  屋主积极研究内部并对其进行改造。

  不浮华或特别

  她们的家充满了爱和感动

  现在就让我们一起来参观吧。

  <a href=韩国夫妻晒出四口之家,参观全屋后,我家的房子瞬间不香了!”/>

  <a href=韩国夫妻晒出四口之家,参观全屋后,我家的房子瞬间不香了!”/>

  <a href=韩国夫妻晒出四口之家,参观全屋后,我家的房子瞬间不香了!”/>

  ● 绘图

  <a href=韩国夫妻晒出四口之家,参观全屋后,我家的房子瞬间不香了!”/>

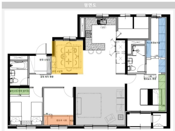
  这是他们的房子立体设计图。

  有包括Alpha Room在内的4个房间,它是一个四开间的结构。

  他们决定设计内部的主要原因

  是因为阿尔法室。

  因为是新房,所以还没有装修。

  它本来就是一个足够漂亮的空间,里面有家具和其他配件。

  因为是 alpha 房间,所以房子看起来太窄了。

  应该只建造 Alpha Room 吗?不

  尽管范围越来越大,所以屋主改变了除了浴室和厨房之外的一切。

  ● 之前

  <a href=韩国夫妻晒出四口之家,参观全屋后,我家的房子瞬间不香了!”/>

  ● 建设中

  <a href=韩国夫妻晒出四口之家,参观全屋后,我家的房子瞬间不香了!”/>

  施工历时约一个半月。

  室内设计非常简约时尚。

  有很多不同的类型可供选择,这取决于您的口味。

  起初,运用了华丽的护墙板、经典的胡桃木等作为装饰 。

  当然,您可以根据自己的审美来制定您的装修方案。

  <a href=韩国夫妻晒出四口之家,参观全屋后,我家的房子瞬间不香了!”/>

  <a href=韩国夫妻晒出四口之家,参观全屋后,我家的房子瞬间不香了!”/>

  这是屋主房屋建筑平面图和 3D 渲染图像。

  看起来非常简约大气。

  ●前门

  <a href=韩国夫妻晒出四口之家,参观全屋后,我家的房子瞬间不香了!”/>

  <a href=韩国夫妻晒出四口之家,参观全屋后,我家的房子瞬间不香了!”/>

  现在我们来到了前门。

  人的初印象十分重要,所以家的入口也同样决定了家的第一印象。

  这也是一个家的氛围感得以展示的地方。

  白色、哑光、灰色交相辉映,完美融合。

  方形天马板的和谐,整齐有序。

  这是孩子们无法到达的少数几个地方之一。

  善于运用各种道具改变气氛而变得十分有趣。

  <a href=韩国夫妻晒出四口之家,参观全屋后,我家的房子瞬间不香了!”/>

  <a href=韩国夫妻晒出四口之家,参观全屋后,我家的房子瞬间不香了!”/>

  <a href=韩国夫妻晒出四口之家,参观全屋后,我家的房子瞬间不香了!”/>

▷ 改变的部分

  

– 移除现有的食品储藏室并将其更改为较低的橱柜

  – 在墙上安装天巴板并安装间接照明镜

  – 将地瓷改为半哑光瓷砖和接缝

  – 哑光白色高光鞋柜门上的胶片工作

  – 移除现有的感应灯后,将其更换为埋入式感应灯

  ● 走廊

  <a href=韩国夫妻晒出四口之家,参观全屋后,我家的房子瞬间不香了!”/>

  这是您从前门进入走廊和客厅的景色。

  侧面的大拱形窗户是我们房子最大的亮点,改变了大家对方形门的初印象,变得生动活泼起来。

  走廊尽头的那幅画是屋主自己创作用来装饰的画布。

  一有时间,她就用来画油画、烘焙、运动。

  <a href=韩国夫妻晒出四口之家,参观全屋后,我家的房子瞬间不香了!”/>

  透过拱形窗户可以看到餐厅。

  屋主表示这是她最喜欢的部分。

  ● 客厅

  <a href=韩国夫妻晒出四口之家,参观全屋后,我家的房子瞬间不香了!”/>

  <a href=韩国夫妻晒出四口之家,参观全屋后,我家的房子瞬间不香了!”/>

  <a href=韩国夫妻晒出四口之家,参观全屋后,我家的房子瞬间不香了!”/>

  <a href=韩国夫妻晒出四口之家,参观全屋后,我家的房子瞬间不香了!”/>

  <a href=韩国夫妻晒出四口之家,参观全屋后,我家的房子瞬间不香了!”/>

  然后我们来到了客厅,。

  在他们的客厅里,为了一个2岁顽皮男孩的活动而造成意外情况的发生。

  故尽量避免放置花盆、客厅桌子、电视柜等大件物品。

  书架和桌子选择带圆角的家具,避免儿童磕碰。

  <a href=韩国夫妻晒出四口之家,参观全屋后,我家的房子瞬间不香了!”/>

  <a href=韩国夫妻晒出四口之家,参观全屋后,我家的房子瞬间不香了!”/>

  <a href=韩国夫妻晒出四口之家,参观全屋后,我家的房子瞬间不香了!”/>

▷ 改变的部分

  

– 地板更换

  – 电影作品(橡胶/成型/冰箱柜和上柜/窗框/门)

  – 绘画和局部绘画

  – 替换为间接照明

  – 改为井顶圆形

  – 安装吊扇

  – 移除艺术墙

  <a href=韩国夫妻晒出四口之家,参观全屋后,我家的房子瞬间不香了!”/>

  <a href=韩国夫妻晒出四口之家,参观全屋后,我家的房子瞬间不香了!”/>

  拆除现有的 alpha 房间墙壁,

  在一侧建了一面临时墙,以最大限度地增加开放感。

  屋主表示不想把餐桌放在客厅和厨房之间不明确的地方

  所以改变了 alpha 房间并将该空间用作餐厅。

  房子里的每一个部分都分的相当清楚,屋主很满意。

  ● 餐厅

  <a href=韩国夫妻晒出四口之家,参观全屋后,我家的房子瞬间不香了!”/>

  而真正陷入困境的Alpha Room

  被屋主改造成带家庭咖啡馆的餐厅。

  这是屋主很喜欢的地方

  拆除了曾经是房间的墙

  通过在临时墙上放了一个大的拱形窗户来增加趣味感。

  而前面的储物柜

  利用鞋柜中的储藏室被拆除的空间

  屋主把它变成了壁橱。

  在家庭式的咖啡厅里

  屋主要了一个带显示器的储物柜。

  <a href=韩国夫妻晒出四口之家,参观全屋后,我家的房子瞬间不香了!”/>

  <a href=韩国夫妻晒出四口之家,参观全屋后,我家的房子瞬间不香了!”/>

  <a href=韩国夫妻晒出四口之家,参观全屋后,我家的房子瞬间不香了!”/>

  <a href=韩国夫妻晒出四口之家,参观全屋后,我家的房子瞬间不香了!”/>

  <a href=韩国夫妻晒出四口之家,参观全屋后,我家的房子瞬间不香了!”/>

  <a href=韩国夫妻晒出四口之家,参观全屋后,我家的房子瞬间不香了!”/>

▷ 改变的部分

  

– 拆除现有墙壁和安装临时墙壁

  – 展示柜制作

  – 安装台灯

  <a href=韩国夫妻晒出四口之家,参观全屋后,我家的房子瞬间不香了!”/>

  屋主喜欢家庭咖啡馆,喜欢做点心和咖啡,所以她大部分时间都是待在里面的。

  ● 厨房

  <a href=韩国夫妻晒出四口之家,参观全屋后,我家的房子瞬间不香了!”/>

  现在我们看到的是厨房。

  厨房是极具现代感的灰色调。

  U型结构增加了厨房的使用面积。

  屋主大部分厨房用具都是黑色的。

  颜色搭配非常平衡,屋主说她非常满意。

  <a href=韩国夫妻晒出四口之家,参观全屋后,我家的房子瞬间不香了!”/>

  <a href=韩国夫妻晒出四口之家,参观全屋后,我家的房子瞬间不香了!”/>

  <a href=韩国夫妻晒出四口之家,参观全屋后,我家的房子瞬间不香了!”/>

  <a href=韩国夫妻晒出四口之家,参观全屋后,我家的房子瞬间不香了!”/>

  <a href=韩国夫妻晒出四口之家,参观全屋后,我家的房子瞬间不香了!”/>

▷ 改变的部分

  

– 通过处理顶级薄膜更改为灰色

  – 冰箱柜的制作

  ● 卧室

  <a href=韩国夫妻晒出四口之家,参观全屋后,我家的房子瞬间不香了!”/>

  <a href=韩国夫妻晒出四口之家,参观全屋后,我家的房子瞬间不香了!”/>

  温暖舒适的卧室

  通过墙上的木工

  屋主安装了天巴板和床头板。

  温暖的灰色充满温馨和温暖的感觉。

  因为卧室是最能令人放松的地方。

  顶部的画布框架为房间增加了趣味性。

  <a href=韩国夫妻晒出四口之家,参观全屋后,我家的房子瞬间不香了!”/>

  <a href=韩国夫妻晒出四口之家,参观全屋后,我家的房子瞬间不香了!”/>

  <a href=韩国夫妻晒出四口之家,参观全屋后,我家的房子瞬间不香了!”/>

▷ 改变的部分

  

– 用墙体木工制作床头板

  – 安装推拉门

  – 改变照明

  ● 更衣室

  <a href=韩国夫妻晒出四口之家,参观全屋后,我家的房子瞬间不香了!”/>

  打开床边的推拉门

  有一个隐藏的更衣室。

  接近 4 米

  它充满了内置的衣柜,能放置家人的衣服,收纳空间很大。

  在高柜的对面,是站立的高台化妆桌。

  <a href=韩国夫妻晒出四口之家,参观全屋后,我家的房子瞬间不香了!”/>

  <a href=韩国夫妻晒出四口之家,参观全屋后,我家的房子瞬间不香了!”/>

▷ 改变的部分

  

– 拆除现有的梳妆台和系统柜

  – 内置衣柜安装和立式梳妆台制作

  – 改变照明

  ● 阳台

  <a href=韩国夫妻晒出四口之家,参观全屋后,我家的房子瞬间不香了!”/>

  这是另一个有氛围感的治愈人心的空间,是卧室旁边的阳台。

  一边喝茶一边听音乐, 令人感到十分舒适。

  希望今天的参观能对您有所帮助。

特别声明:以上文章内容仅代表作者本人观点,不代表韩国服务器网观点或立场。如有关于作品内容、版权或其它问题请于作品发表后的30日内与韩国服务器网联系。

[图文来源于网络,如有侵权,请联系删除]